ไอเดียแต่งบ้าน       Hits:5020
บ้านโมเดิร์น หลังนี้ตั้งอยู่บานที่ลาด ด้านหนึ่งเป็นชุมชน และอีกด้านลาดลงไปติดกับสวนพฤกศาสตร์สาธารณะ การวางบ้านโมเดิร์นหลังนี้นั้น.....
อ่านต่อ >>>							 
																															
																															
																															
																															
								ธรรมะประจำวัน       Hits:5469
หากเราสร้างตัวได้สำเร็จแล้ว มีความร่ำรวยมั่งคั่งแล้ว มีโภคทรัพย์มากมายแล้ว พระพุทธเจ้าทรงตรัสสอนให้รักษาความมั่งคั่งนั้นไว้ว่าอย่างไรบ้าง ติดตามกันครับ
ดูก่อนภิกษุทั้งหลาย.....
อ่านต่อ >>>							 
																															
								ธรรมะประจำวัน       Hits:7316
หากพูดถึงความตายแล้ว คนมักจะกลัวความตายเป็นส่วนใหญ่ แต่ในทางพุทธนั้น บุคคลที่ไม่กลัวความตายก็มีอยู่ และบุคคลที่กลัวความตายก็มีอยู่.....
อ่านต่อ >>>							 
																															
								ไอเดียแต่งบ้าน       Hits:5667
บ้านหัวมุมสุดเท่ ที่ประเทศญี่ปุ่นหลังนี้ มีพื้นที่ค่อนข้างเล็กมากเพียง 44.62 ตารางเมตร.....
อ่านต่อ >>>							 
																															
								ธรรมะประจำวัน       Hits:5634
ชาวพุทธทั้งหลาย หากเคยได้ยินประโยคที่ว่า "ผู้ใดเห็นธรรม ผู้นั้นเห็นเรา" ลองมาดูความหมายที่แท้จริงกันว่าพระพุทธเจ้าทรงหมายถึงอะไร?.....
อ่านต่อ >>>							 
																															
																															
								ธรรมะประจำวัน       Hits:5292
หลายๆครั้งที่เราอาจจะเกิดความกลัวขึ้น เมื่อต้องไปอยู่ในที่เปลี่ยวๆ ในที่อันน่ากลัว ป่าช้า สุสาน.....
อ่านต่อ >>>							 
												 
						
																															
																															
								ไอเดียแต่งบ้าน       Hits:6651
หลังจากที่เราเคยพบชมบ้านในสไตล์โมเดิร์นมาหลายหลังแล้ว วันนี้มาลองชมการตกแต่งภายใน ในสไตล์ฟิวเจอริสติก (Futuristic) กันบ้างครับ
งานตกแต่งภายในห้องพักอาศัยนี้.....
อ่านต่อ >>>							 
																															
								ธรรมะประจำวัน       Hits:13635
หลักการพูดนั้นเป็นสิ่งสำคัญ และละเอียดอ่อนอย่างยิ่ง การพูดโกหกนั้น จริงอยู่ว่าไม่ดีแน่ๆ แต่การพูดความจริงแต่ในบางจังหวะ.....
อ่านต่อ >>>							 
																															
								อาหารเพื่อสุขภาพ       Hits:7253
เรื่องนี้เป็นเรื่องที่น่าสนใจมากครับ และเป็นคำถามที่วงการแพทย์วิจัยกันมาอย่างยาวนานกว่า 2 ทศวรรษว่า เหตุใดชาวฝรั่งเศสจึงมีอายุยืนมีความเสี่ยงโรคหัวใจต่ำ.....
อ่านต่อ >>>							 
																															
																															
								ไอเดียแต่งบ้าน       Hits:21173
ประตูรั้ว เป็นอีกหนึ่งในจุดสำคัญที่ต้องออกแบบให้สวยงาม เนื่องจากเป็นจุดที่คนจะเห็นเป็นจุดแรกก่อนเข้าบ้าน
สำหรับสถาปนิก นักออกแบบ หรือ.....
อ่านต่อ >>>							 
																															
																															
								ธรรมะประจำวัน       Hits:7012
ความอดทนนั้น เป็นสิ่งที่ดีแน่นอน ในการทำงานต่างๆ ล้วนต้องใช้ความเพียรและความอดทนแทบทั้งสิ้น พระพุทธเจ้าท่านได้ทรงตรัสไว้ถึงอานิสงส์ของความอดทนและโทษของความไม่อดทนไว้ดังนี้
ดูก่อนภิกษุทั้งหลาย.....
อ่านต่อ >>>							 
																															
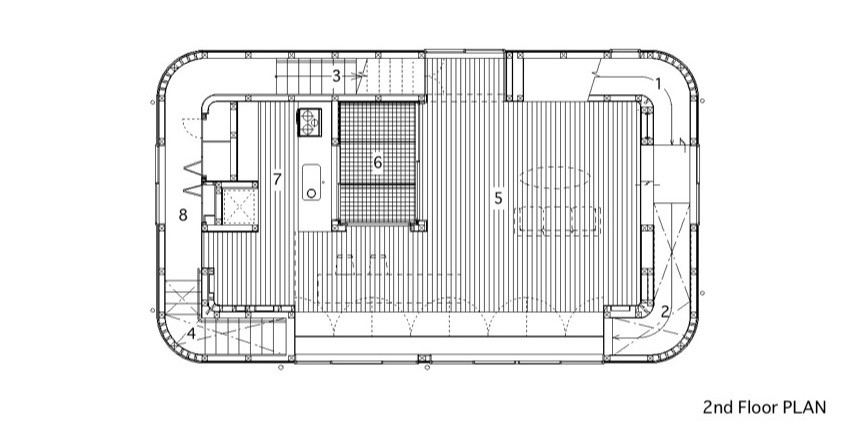
								ไอเดียแต่งบ้าน       Hits:7306
สถาปนิก: LEVEL Architects
ที่ตั้ง: โตเกียว
ปีที่แล้วเสร็จ: 2552
การออกแบบบ้านโดยทั่วไปแล้วเรามักจะคิดถึงเรื่องของฟังก์ชั่น.....
อ่านต่อ >>>							 
																															
																															
								ธรรมะประจำวัน       Hits:6787
การกินอาหารแบบชาวพุทธนั้น พระพุทธเจ้าทรงสอนไว้อย่างไร? หากท่านเคยไปวัดในช่วงเช้า ถวายภัตตาหารพระภิกษุ คงจะพอได้ยินบทสวดนี้มาบ้าง.....
อ่านต่อ >>>							 
																															
												 
						
																															
								ธรรมะประจำวัน       Hits:9852
หลายๆคนอาจสงสัยว่า การทำทานด้วยของอย่างดี ของประณีต กับการทำทานด้วยของเศร้าหมองนั้น มีผลแตกต่างกันอย่างไร?
เช่น.....
อ่านต่อ >>>							 
																															
																															
																															
																															
																															
								ธรรมะประจำวัน       Hits:7278
พ่อแม่ทุกคนคงอยากได้ลูกเป็นคนดี เป็นคนกตัญญู ทำงานหาเงินเลี้ยงดูครอบครัวตนเองได้ และดูแลพ่อแม่ในยากแก่ชรา แต่ในปัจจุบันเราก็มักจะพบข่าวที่ว่าลูกหลายๆคนประพฤติตนไม่ดีบ้าง.....
อ่านต่อ >>>							 
																															
								ธรรมะประจำวัน       Hits:22521
หลังจากที่ได้โพสต์ในเรื่องของ อายุการบวชสามเณรในพระพุทธศาสนา กันไปแล้ว ว่าสามเณรจะบวชได้ต้องเป็นเด็กชายอายุเท่าไร? .....
อ่านต่อ >>>							 
																															
								ไอเดียแต่งบ้าน       Hits:13967
 อีกหนึ่งบ้านในตำนานสถาปัตยกรรมยุคโมเดิร์น Villa Savoye ออกแบบโดยสถาปนิกชื่อดังชาวฝรั่งเศส.....
อ่านต่อ >>>							 
																															
								ธรรมะประจำวัน       Hits:6440
การรีบร้อนพูดบางครั้งอาจทำให้ผิดพลาดได้หลายๆอย่าง พระพุทธองค์ได้ทรงตรัสสอนในเรื่องนี้ไว้เช่นกัน ดังเนื้อหาดังนี้:
ก็ข้อที่เรากล่าวดังนี้ว่า พึงเป็นผู้ไม่รีบด่วนพูด อย่างพูดรีบด่วนนั้น.....
อ่านต่อ >>>							 
																															
								ธรรมะประจำวัน       Hits:8095
ในโลกมนุษย์หากมีใครคนหนึ่งเสียชีวิต ไม่ว่าจะเป็นญาติ พี่น้อง หรือ คนใกล้ชิด...เรามักจะอวยพรกันว่าขอให้ไปสวรรค์.....
อ่านต่อ >>>