
บ้านน้ำตก หรือ Falling Water เป็นบ้านในตำนานสถาปัตยกรรมของโลก เพราะออกแบบได้ผสมผสานกับธรรมชาติได้อย่างลงตัว เป็นบ้านที่สถาปนิกทั่วโลกให้การยอมรับว่าเป็นสุดยอดสถาปัตยกรรมเลยทีเดียว
บ้านหลังนี้จะมีดีอย่างไร และมีเรื่องราวเป็นมาอย่างไร ลองมาดูกันครับ
สถาปนิก: แฟรง ลลอยด์ ไรท์ (Frank Lloyd Wright)
ที่ตั้ง: 1491 Mill Run Rd., Mill Run, PA 15464, USA
วิศวกร: Mendel Glickman and William Wesley Peters
เจ้าของบ้าน: Mr. and Mrs. Edgar Kaufmann
แล้วเสร็จ: พ.ศ.2482 (1939)
แฟรง ลลอยด์ ไรท์ ได้สร้างบ้านน้ำตก (Falling Water)ในตำนานหลังนี้ ให้กับครอบครัวของนายเอ็ดการ์ (Mr. Edgar Kaufmann) ซึ่งเป็นบ้านพักผ่อนในวันหยุด ครอบครัวนั้นประกอบด้วย นายเอ็ดการ์ ภรรยา และลูกชายของเค้า โดยไรท์ได้รู้จักกับครอบครัวของเอ็ดการ์ผ่านทางลูกชาย ซึ่งเป็นลูกศิษย์ของไรท์
น้ำตกแห่งนี้เป็นที่พักผ่อนของครอบครัวเอ็ดการ์มานานกว่า 15 ปี ต่อมาได้ว่าจ้าง ไรท์ ให้ออกแบบบ้านหลังนี้ในพื้นที่น้ำตก ซึ่ง ไรท์ ได้ออกแบบบ้านผสานไปกับน้ำตกธรรมชาติอย่างลงตัว
บ้านน้ำตกหลังนี้ประกอบด้วย 2 ส่วน ส่วนแรกคือ ส่วนของบ้านหลัก ซึ่งสร้างในปี 2479-2481 และส่วนของเรือนรับรองเสร็จในปี 2482
บ้านหลักประกอบด้วยห้องที่ออกแบบตกแต่งง่ายๆโดยไรท์เอง โดยมีห้องนั่งเล่นแบบเปิด และห้องครัวในชั้นล่าง
มีห้องนอนเล็กๆ 3 ห้อง อยู่ชั้น 2 และมีห้องทำงาน รวมกับ ห้องนอนของลูกชายเอ็ดการ์อยู่บนชั้น 3
จุดเด่นของบ้านหลังนี้เมื่อมองจากภายนอก คือ ปล่องเตาผิงไฟที่เป็นแท่นสูงเด่นที่สุดในบ้านกรุด้วยหินโดยรอบ และมีระเบียงยื่นยาวเล่นระดับล้อมรอบอาคาร
มีหน้าต่างเปิดได้บริเวณมุมบ้าน เพื่อให้เสียงน้ำตกเข้ามาภายในบ้าน ให้ความรู้สึกถึงธรรมชาติได้เป็นอย่างดี
ที่ห้องนั่งเล่น มีบันไดเล็กๆลงไปเล่นน้ำได้
บางจุดของบ้านจะมีฝ้าเพดานค่อนข้างเตี้ย (สูงเพียง 190 ซม.) ด้วยระเบียงยื่นยาว เพื่อบังคับมุมมองให้มองออกไปยังธรรมชาติที่สวยงามรอบๆบ้าน

แปลนบ้านน้ำตก ชั้น 1

แปลนบ้านน้ำตก ชั้น 2

แปลนบ้านน้ำตก ชั้น 3

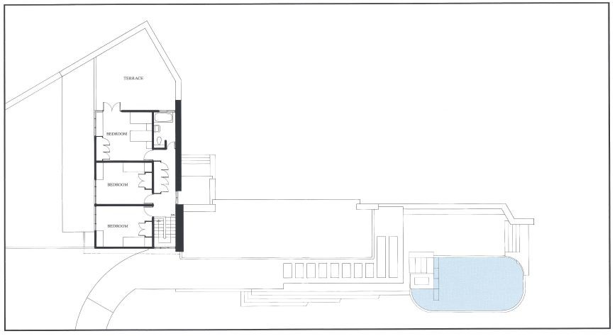
แปลนบ้านน้ำตก ในส่วนเรือนรับรอง ชั้น 1

แปลนบ้านน้ำตก ในส่วนเรือนรับรอง ชั้น 2



ทางเข้าบ้าน

ห้องนั่งเล่นที่คงสภาพไว้ตามเดิม

ห้องนั่งเล่นมองเห็นธรรมชาติได้ชัดเจน

หน้าต่างบริเวณมุมบ้าน


มุมมองห้องนั่งเล่นไปยังเตาผิงไฟที่เป็นเหมือนหัวใจของบ้าน

หน้าต่างบริเวณมุมบ้าน สามารถเปิดได้

บันไดลงจากห้องนั่งเล่น เพื่อไปเล่นน้ำ



ทางเดินไปยังเรือนรับรอง หลังคาทำด้วยคอนกรีตเสริมเหล็ก ไล่ระดับ

เรือนรับรอง

คานโค้งหลบต้นไม้ ไม่ทำลายธรรมชาติ




อ่างล้างมือก่อนเข้าบ้าน


สวยงามจริงๆครับ
หากยังไม่สะใจ ไปชมคลิปบ้านน้ำตก Falling Water แบบ 3D กันเลย ตามคลิปด้านล่าง
ที่มาข้อมูลและรูปภาพ: http://www.archdaily.com/60022/ad-classics-fallingwater-frank-lloyd-wright
ภาพบางส่วนจาก: http://www.yelp.com/biz_photos/fallingwater-mill-run?start=30



